
WIDE RESIDENCES
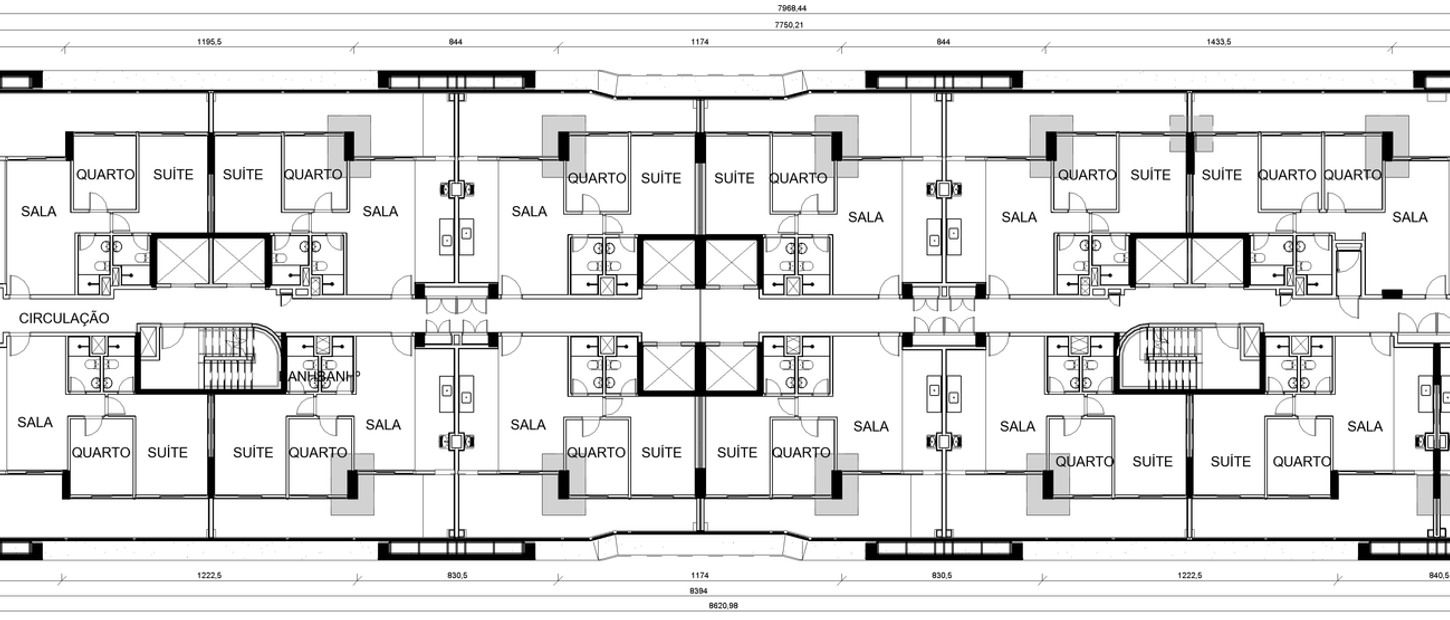
Este projeto residencial no Recreio dos Bandeirantes se destaca por sua arquitetura contemporânea e imponente, com 21 pavimentos desenhados para oferecer um equilíbrio entre funcionalidade e sofisticação. A volumetria organizada é marcada pela pele de vidro nas fachadas, conferindo um visual moderno e dinâmico, ao mesmo tempo em que permite ampla entrada de luz natural nos ambientes internos.
Etapas de Projeto – Projeto Executivo
Usos do Modelo – Visualização 3D, Documentação, Modelo Federado
Nível de maturidade 02 – Colaboração com modelos de diferentes disciplinas e em diferentes fases de desenvolvimento, com armazenamento em um ambiente comum de dados (CDE), gerando relatórios de compatibilização (BCF – BIM Collaboration Format).
Matriz de Responsabilidade – Modelo Arquitetônico e Modelo Federado,
Nível de desenvolvimento de modelo (LOD) – LOD 350 - O elemento é representado graficamente no modelo como um sistema, objeto ou conjunto específico, detalhado em termos de quantidade, tamanho, forma, localização, orientação e interfaces com outros sistemas construtivos.
INFORMAÇÕES BIM
3D & 5D
DIMENSÃO BIM
350
LOD
02
MATURIDADE










